Phase 2 design

The design concept

The design and layout of Phase 2 is centred around maximising daylight for apartments and creating green and engaging street edges that feel safes onto all surrounding routes.

New homes face Warwick Road, with bay windows and a green buffer at ground level to create an active and welcoming street.

Residential entrances are located at the corners of Mill Lane and Drury Lane, in addition to entrances accessed through the communal garden.

A green garden is the heart of Phase 2, a welcoming environment for residents to pass through as they enter their homes, or dwell with other residents or visitors.

Retail units are located along Mill Lane, with servicing and plant areas purposefully located to allow easy refuse collection whilst remaining discreet.

Accessible cycle storage with maintenance stations are in the buildings wings and can be accessed through the communal garden.

Parking, including accessible and EV-enabled charging spaces are located to the south of Phase 2, with a loading bay on Mill Lane.

Illustrative view of Mill Lane residential entrance

Illustrative view of Drury Lane

Mansion Block inspired

The proposals are inspired by traditional late-Victorian mansion blocks, a well-established building type that provides high-quality homes while fitting comfortably into the surrounding streets.

Illustrative view of Entrance Garden frontage

Illustrative view of Warwick Road frontage

Illustrative view of Warwick Road frontage

These buildings are typically mid-rise, using red brick with lighter detailing, and feature bay windows and shallow balconies that add character and improve living spaces.

Our design reflects these qualities, with bay windows that extend to the top of the building, maximising daylight and creating an articulated roofline.

A high-quality, well detailed brick façade with a palette of plum, red and cream bricks has been selected to reflect the existing character of the local area.

Juliette balconies with decorative balustrades open onto living spaces, allowing residents to fully open windows during favourable weather, while maintaining privacy and usability with decorative balustrade also proposed below bedroom windows.

Illustrative view of south Facing Facade

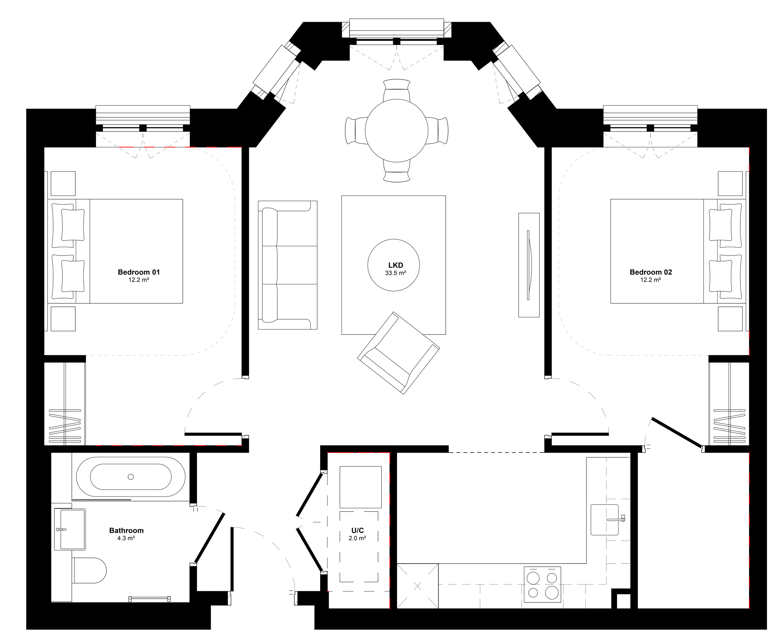
Apartment types

The apartments are comprised of a mix of one- and two-bedrooms homes. Generous windows maximise daylight to all apartments, particularly focusing on living, kitchen, and dining spaces that naturally have deeper proportions.

To minimise the effects of north facing apartments, bay windows have been introduced along the northern façade, drawing from the mansion block typology.

Internal layouts have been optimised to ensure a sociable and comfortable living experience with ample storage.

For south facing apartments, balconies are proposed to overlook the resident's garden, positioned to maximise outlook towards public spaces, key views, and provide opportunities for passive surveillance.

Landscape vision and design

The vision for Phase 2 follows the approved landscape masterplan for the wider site. This plan aims to create attractive public spaces where greenery and nature are woven into streets and lanes, helping people feel more connected to the natural environment.

The masterplan is divided into three main landscape areas, each linked to how the buildings are used. Phase 2 sits within the mainly residential Mews Garden neighbourhood and is located close to the planned Drury Gardens. This will be a calm, green space with planting and rain gardens, providing a relaxing place for residents to enjoy.

A garden approach

Illustrative axonometric of Phase 2 courtyard landscape proposals (click to expand)

The design of Phase 2 is centred around a shared, green landscaped garden, with a newly established Warwick Way to the south. This space forms a south-facing courtyard that is intended to be a calm and welcoming environment for residents to pass through as they enter their homes and offer residents and visitors places to enjoy the garden as an amenity.

The garden will be set at street level and be separated from the pavement with visually permeable fence and gates, allowing clear and safe access between Warwick Way, the car parking areas, and the two main building entrances.

A naturalistic approach is adopted, with integrated doorstep play, social spaces and planting, whilst also integrating SuDS (Sustainable Drainage Systems) features for rainwater attenuation, reducing runoff and supporting local ecosystems.

Projecting balconies are proposed to overlook the resident's garden. These are carefully positioned to maximise outlook towards public spaces, key views, and provide opportunities for passive surveillance.

Concept sketch

Streetscape

The majority of ground floor street frontages are occupied by active uses (commercial or residential). This ensures both a lively streetscape and a high level of natural surveillance to pedestrian routes and public spaces.

Ground-floor commercial spaces on Mill Lane will maintain a lively and active street atmosphere, supporting shops and cafés that complement the new homes above. Shopfronts will feature metal framed glazing and high-level signage inspired by the apartment balustrades.

The Warwick Road street entrances feature deep modelled brick surrounds, making them prominent and sheltered. This design also allows for deliveries and visitors to access the building without passing through the residential garden.

The landscape treatment on Warwick Road will provide an urban greenway with tree, shrub and groundcover beds, forming a green buffer between Phase 2 apartments and the Warwick Road.

Drury lane is designed as a slow speed environment with rain garden SuDS (Sustainable Drainage Systems) features.

Warwick Way

Warwick Way is a new, one-way street. For this reason, perpendicular parking has been proposed as it uses space more efficiently. Trees and rain gardens are located between parking spaces to introduce greenery and improve the look and feel of the street. Access will be retained to existing buildings to the south of Phase 2 until the wider masterplan phases are delivered.

Sketch view: View of Warwick Way

Car parking

The design balances the need for parking on Warwick Way with the aim of creating a generous courtyard. Parking is limited to encourage greener travel, with 17 spaces including accessible bays and EV charging points. The footpath has been set back slightly to improve pedestrian safety and reduce the need to walk behind reversing vehicles.

Sustainable drainage

Nature-based Sustainable Drainage Systems (SuDS) will be used across the site, including Drury Lane, Warwick Way and the courtyard. These features manage rainwater in a natural way while creating attractive green spaces that support wildlife and informal play. Rain gardens along Warwick Way and Drury Lane will slow and filter rainwater before it enters the wider drainage system.

Permeable paving in the car parking areas will allow water to soak through the surface, reducing runoff. An underground water storage tank will be located beneath the courtyard and designed to avoid conflict with trees.

Overall, the site slopes from the south-west to the north-east, and the drainage design has been carefully planned to work with existing and future phases of development.

Green roof

Green roofs are also proposed to help reduce rainwater runoff from buildings. There is a clear commitment to incorporating green roofs throughout the development. These will improve the environmental performance of the buildings by enhancing insulation and supporting biodiversity, while also helping to create a greener, more sustainable town.

Roof plan (click to expand)

Connected and accessible for everyone

Phase 2 introduces new pedestrian-friendly routes and improving connections between key streets, while encouraging sustainable travel choices. Two secure cycle stores provide space for 116 bicycles, complete with lighting and wash-down facilities.

The design prioritises walking and cycling, with clear wayfinding, well-lit public spaces, and active frontages to make the area feel safe and vibrant. By reducing reliance on cars and improving connections, Phase 2 supports a more sustainable and inclusive town centre.

Vehicle movement plan (click to expand)